


无障碍升降平台由升降平台、导轨和驱动系统等三大部分组成;导轨是由C型钢,H钢型材、T型轨、铝型材为主体部件,采用“翘板自复位开关操作运行”,无基坑(可选有基坑)式安装,直接固定于混凝土地面(无底坑室外应用情况下,平台下方混凝土地面不得低于周围地面),手动液压阀打开时升降底板可手动下降;液压驱动,升降平稳安全,外部采用拉丝不锈钢材料或铝板静电喷塑机箱/面板,外形小巧美观,不阻碍周边环境。本设备施工简便,产品放置户外不易积水,不易生锈,维护简便。升降高度支持定制!
驱动系统:液压升降、螺杆升降、减速机升降等可选。
运行方式:点动控制/联动。
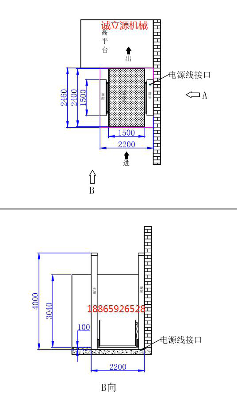
安装方式:无基坑安装,直接固定于混凝土地面,可选有基坑安装。
外控装置:外呼盒分别安置于设备上、下停层附近墙面,也可选加遥控器。
紧急停止:遇有紧急情况按下紧急按纽开关可关闭机器运行。
手动操作:手动液压阀打开,是设备自带的应急下降装置。
残疾人升降机安全装置:
安全联锁:任何非正常操作时,升降平台不能运行。
安全触板:运行中安全触板遇障碍物,运行立即停止。
紧急下降:无电或故障时,手动下降装置。
手动安全门:平台离站,安全门手动锁定,到站手动打开。
安全锁匙:专用钥匙控制,专人专管。
电源 220V/50HZ/25A
升降底板尺寸 1370mm(长度)×862mm(宽度)(可根据要求定制)
升降底板最小高度 65mm (离地面)(可根据要求定制)
最大提升高度 500mm-8000mm(离地面)(可根据要求定制)
升降速度 4-6m/min (可调)
最大载重量 300kg(可根据要求定制)
进出方式 90°或 180°(可根据要求定制)
护板形式 90°或 180°(可根据要求定制)
平台底板面板 花纹防滑铁/铝板(可根据要求定制)
安全翘板工作角度 75°(上升翘起)
控制电源电压 24V/DC
电机 0.75kw 220V/AC 或 110V/AC
升降控制:翘板自复位开关操作运行
过载保护:过电流继电器控制
工作环境:室内外适用
工作温度:-20°C—60°C
无障碍升降机是为残疾人专门设计制造的升降机,为方便残疾人出行及观光,在社区,医院宾馆等地方。旅游观光梯通道的自动扶梯旁,安装了无障碍升降机。
样式有:剪叉式无障碍升降机、铝合金无障碍升降机、导轨式无障碍升降机、爬楼式升降机。
本公司是一家以主营无障碍升降平台,家用升降机,升降平台,登车桥。是专业生产系列液压升降台的企业,本厂生产设备精良,检测手段齐全,技术力量雄厚,各项性能和技术指标均达到行业标准,随着改革开放的步伐,公司得到了快速发展,现已成为国内主要的液压升降台企业。 制造经验丰富,公司坚信,只有不断的创新,才能持续的发展。创立至今,始终以液压升降台为主达产品,经过长期的研究和探索,无障碍升降设备技术成熟,操作方便,使用简单,质量可靠。



请长按保存二维码后点击确定按钮,进入微信扫一扫界面,点击右上角‘相册’选择我们的二维码,再点击右上角‘完成’识别添加。
(为防止浏览器错误识别,请勿直接在浏览器中识别二维码)